Introductie van het Dyla 121 Wc-slot
Herken je het gevoel van zekerheid als je deur dichtklikt en je weet dat je privacy is gegarandeerd? Met het Dyla 121 Wc-slot geniet je van dit comfort elke keer dat je je badkamer of toilet binnengaat. Dit inbouw-WC slot biedt niet alleen een hoge mate van veiligheid, maar ook de algehele uitstraling draagt bij aan de elegantie van je ruimte. Het installeren van een betrouwbaar wc-slot, zoals de Dyla 121, is een slimme keuze voor iedereen die waarde hecht aan veiligheid, gebruiksgemak en stijl.
Unieke Eigenschappen van het Dyla 121 Wc-slot
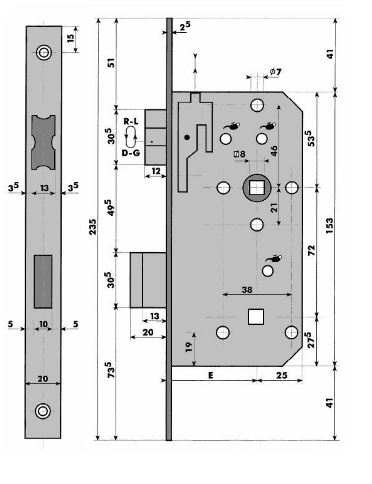
Dit WC-slot onderscheidt zich van andere sloten door zijn unieke specificaties. De strakke voorplaat met een breedte van 22mm en lengte van 235mm maakt het slot geschikt voor de meeste deuren. Daarnaast is de voorplaat gelakt, wat bijdraagt aan de duurzaamheid en het onderhoudsgemak van het slot. Het Dyla 121 wc-slot is ontworpen met een deurdraairichting die keerbaar is en voorzien van een schootsluiting, dit geeft zowel de maximale functionaliteit als flexibiliteit in gebruik. Het slot heeft bovendien een asmaat van 78mm en een doornmaat van 50 en 55mm, waardoor hij een uitstekende pasvorm heeft voor een breed scala aan deuren.
Gebruiksgemak en installatie van het Dyla 121 Wc-slot
Wat het Dyla 121 wc-slot echt onderscheidt, is het gebruiksgemak en de eenvoudige installatie. De ingebouwde montage maakt de installatieprocedure relatief eenvoudig. Het slot wordt bediend door middel van een kruknoot met een diameter van 8mm, wat zorgt voor gebruiksgemak en een hoog comfortgehalte. Bovendien is het slot niet zelfvergrendelend, wat voorkomt dat je jezelf per ongeluk opsluit. Door de stevige materiaalsamenstelling en de hoge kwaliteit van het slot hoef je je geen zorgen te maken over de duurzaamheid. Het slot vraagt weinig onderhoud, wat een extra pluspunt is voor dagdagelijks gebruik.
Waarom kiezen voor het Dyla 121 Wc-slot?
Met het heersende belang van privacy en veiligheid in woonruimtes, is de keuze voor een betrouwbaar en duurzaam WC-slot cruciaal. Het Dyla 121 WC-slot biedt niet alleen deze basisbehoeften, maar gaat een stap verder met ontwerpdetails zoals de modulaire vorm en het gebruiksgemak. Daarnaast zijn de onderhoudsvriendelijkheid en duurzaamheid overtuigende redenen om voor dit product te kiezen. Wanneer je kiest voor het Dyla 121 WC-slot, kies je voor kwaliteit, betrouwbaarheid, en comfort.
Ervaar zelf het gemak en de zekerheid van het Dyla 121 WC-slot in jouw woning of bedrijfsruimte. Waar wacht je nog op? Bestel nu en geniet optimaal van je privacy met het Dyla 121 WC-slot.







